跳到主要內容區
您的瀏覽器不支援JavaScript功能,若網頁功能無法正常使用時,請開啟瀏覽器JavaScript狀態
漢堡鈕選單
事務組
採購組
保管組
營繕組
經管組
總務處
聯絡我們
網站地圖
English
成大首頁
首頁
營繕請修與管理系統
校園管溝
校園管溝
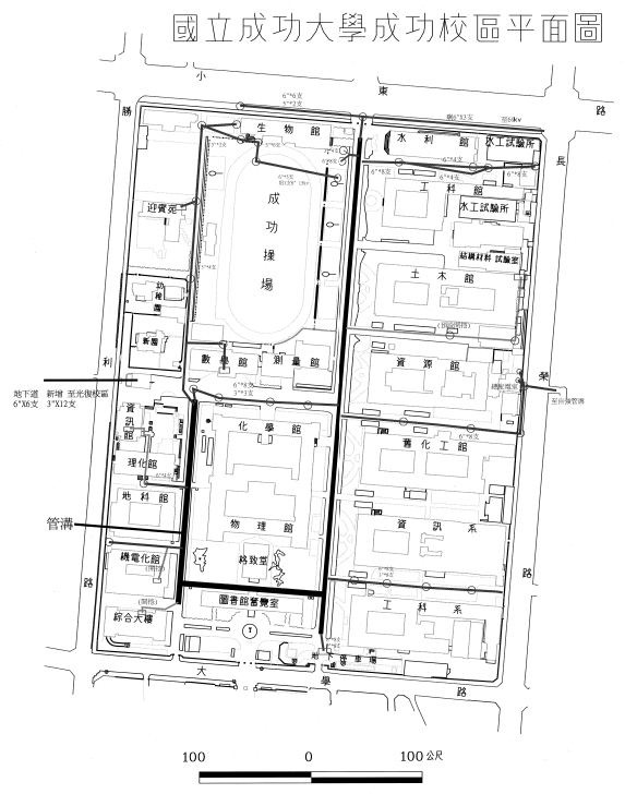
成功校區校園管溝
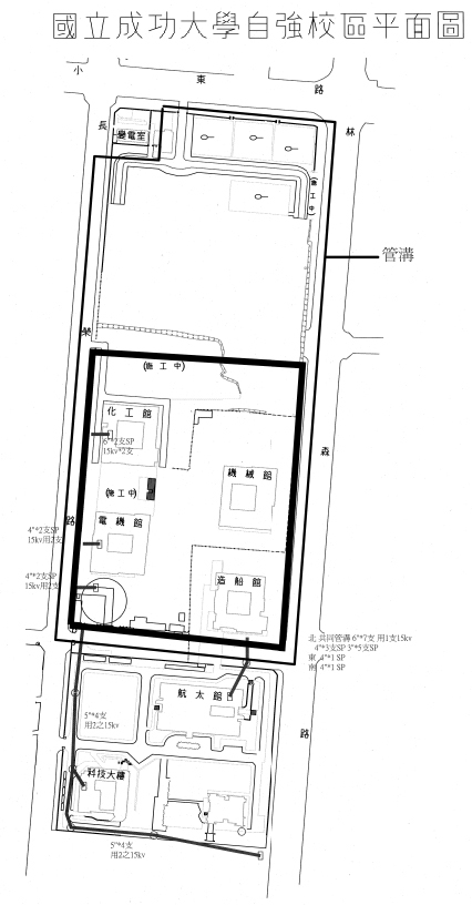
自強校區校園管溝
登入成功
Close (Esc)
Share
Toggle fullscreen
Zoom in/out
Previous (arrow left)
Next (arrow right)